GB/T 14768-2015 地毯燃燒性能45°試驗方法及評定
- 發表時間:2022-11-20
- 來源:共立消防
- 人氣:
1 范圍
本標準規定了地毯在實驗室的控制條件下,以45°傾斜放置的地毯試樣表面在火焰作用下燃燒性能的試驗方法及評定。
本標準適用于各種纖維組分和組織結構的地毯。
本標準不適用于其他試驗位置的地毯燃燒性能和地毯在實際著火條件下危險性的評定。
2 規范性引用文件
下列文件對于本文件的應用是必不可少的。凡是注日期的引用文件,僅注日期的版本適用于本文件。凡是不注日期的引用文件,其最新版本(包括所有修改單)適用于本文件。
GB/T 3291.3 紡織 紡織材料性能和試驗術語 第3部分:通用
3 術語和定義
GB/T 3291.3界定的以及下列術語和定義適用于本文件。
3.1
點燃時間 ignition time
不論材料是否燃著,材料在點火源中規定的暴露時間。
3.2
續燃時間 afterflame time
在規定的試驗條件下,移開點火源后材料持續有焰燃燒的時間。
3.3
陰燃時間 afterglow time
在規定的試驗條件下,當有焰燃燒終止后,或本為無焰燃燒者,移開火源后,材料持續無焰燃燒的時間。
3.4
損毀長度 damaged length
在規定的試驗條件下,在規定方向上材料損毀部分的最大長度。
4 原理
在規定的試驗條件下,對45°傾斜放置的地毯試樣表面點火一定的時間,測量其試樣的損毀長度、續燃時間和陰燃時間。
5 設備和材料
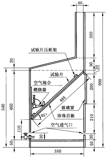
5.1 45°燃燒試驗儀:燃燒試驗儀的燃燒箱體用不銹鋼材料制成,箱體應裝有玻璃觀察窗,箱的頂部裝有排煙口,兩側下部各開有一排通風孔,箱內設有試樣夾持框架裝置與水平位置成45°,試驗箱由定時、點火裝置及安全控制系統等組成,見圖1。
單位為毫米

圖1 45°燃燒試驗儀
5.2 試樣框架:試樣框架由壓框和底板構成,用以固定試樣。壓框由不銹鋼制成,底板為石棉水泥珍珠巖板,見圖2。
單位為毫米

圖2 試樣壓框及石棉水泥珍珠巖板
5.3 燃燒器及安裝:燃燒器由燃燒管、燃氣噴嘴和火焰穩定器等組成,燃燒器及安裝見圖3。
單位為毫米

圖3 燃燒器及安裝
5.4 燃氣介質:采用液化石油氣。
5.5 恒溫干燥箱:應有鼓風和恒溫控制。
5.6 干燥器:用以存放干燥后的試樣,使用變色硅膠為干燥劑。
5.7 秒表:計時精度為0.1s。
5.8 鋼直尺:分度值為1mm。
5.9 吸塵器和刷子:用以清潔試樣。
5.10 手套:聚乙烯、聚丙烯或橡膠材質的手套均可。
6 試樣及調濕
6.1 沿平行和垂直于生產方向各截取三塊試樣,尺寸為400mm×220mm。用吸塵器和刷子清潔試樣,除去試樣表面的散絨毛、紗頭等物,將試樣表面的絨頭刷起豎立。
6.2 試樣調濕:把試樣放在(50±2)℃的恒溫干燥箱內放置24h或在(105±2)℃的恒溫干燥箱內放置1h后,將試樣迅速移入干燥器內,直至達到室溫。
7 試驗程序
7.1 試驗應在溫度10℃~30℃,相對濕度20%~65%的大氣中進行。
7.2 將試驗儀放在通風櫥內,接通電源和氣源。
7.3 點著燃燒器,維持燃燒器的入口壓力為3.92kPa(400mm H2O),調節火焰高度為24mm。
7.4 戴上手套,從干燥器內取出一塊試樣,毯面朝上迅速放入試驗箱內的底板上,再用壓框壓住四周,使其固定在45°位置不致滑動。
7.5 將燃燒器水平放置,根據試樣厚度調節燃燒器噴嘴前端與試樣表面的距離為1mm。
7.6 關閉試驗箱門,啟動點火開關,待火焰穩定后將燃燒器水平放置,對試樣表面點火30s。試樣從干燥器取出至點燃應在2min以內,如超過2min應另取試樣,按7.4~7.6步驟重新試驗。
7.7 觀察試樣的燃燒情況,記錄試樣的續燃時間和陰燃時間,精確至0.1s。
7.8 開啟通風櫥的排風裝置,排除煙霧及有毒氣體。打開試驗箱門取出試樣,測量損毀長度,精確至1mm。
7.9 清除試驗箱內的殘留物后,再進行下一塊試樣的試驗。
8 試驗結果的表示
分別從平行和垂直于生產方向的試樣中,選取損毀長度、續燃時間和陰燃時間的最大測量值。損毀長度精確至1mm,續燃時間和陰燃時間精確至0.1s。
9 試驗結果的評定
每塊試樣縱向和橫向的損毀長度應小于或等于100mm,續燃時間和陰燃時間應小于或等于20.0s。如其中有一塊燃燒不合格,則判該樣品為不合格品。
10 試驗報告
試驗報告應包括以下內容:
a)說明試驗是按本標準進行的,以及任何偏離本試驗方法的細節;
b)試驗和調濕采用的溫濕度條件;
c)試樣的品種、規格;
d)每個方向的損毀長度、續燃時間和陰燃時間分別以最大測量值表示;
e) 試驗結果的評定;
f) 試驗日期。
以上為標準部分內容,如需看標準全文,請到相關授權網站購買標準正版。
-
IG541混合氣體滅火系統
IG541混合氣體滅火系統:IG-541滅火系統采用的IG-541混合氣體滅火劑是由大氣層中的氮氣(N2)、氬氣(Ar)和二氧化碳(CO2)三種氣體分別以52%、40%、8%的比例混合而成的一種滅火劑 -
二氧化碳氣體滅火系統
二氧化碳氣體滅火系統:二氧化碳氣體滅火系統由瓶架、滅火劑瓶組、泄漏檢測裝置、容器閥、金屬軟管、單向閥(滅火劑管)、集流管、安全泄漏裝置、選擇閥、信號反饋裝置、滅火劑輸送管、噴嘴、驅動氣體瓶組、電磁驅動 -
七氟丙烷滅火系統
七氟丙烷(HFC—227ea)滅火系統是一種高效能的滅火設備,其滅火劑HFC—ea是一種無色、無味、低毒性、絕緣性好、無二次污染的氣體,對大氣臭氧層的耗損潛能值(ODP)為零,是鹵代烷1211、130 -
手提式干粉滅火器
手提式干粉滅火器適滅火時,可手提或肩扛滅火器快速奔赴火場,在距燃燒處5米左右,放下滅火器。如在室外,應選擇在上風方向噴射。使用的干粉滅火器若是外掛式儲壓式的,操作者應一手緊握噴槍、另一手提起儲氣瓶上的


