GB 19880-2005 手動火災報警按鈕
- 發表時間:2022-11-12
- 來源:共立消防
- 人氣:
1 范圍
本標準規定了手動火災報警按鈕的一般要求、要求與試驗方法、檢驗規則和標志。
本標準適用于一般工業與民用建筑中安裝使用的手動火災報警按鈕,其他具有特殊功能的火災報警啟動按鈕亦應執行本標準。
2 規范性引用文件
下列文件中的條款通過本標準的引用而成為本標準的條款。凡是注日期的引用文件,其隨后所有的修改單(不包括勘誤的內容)或修訂版均不適用于本標準,然而,鼓勵根據本標準達成協議的各方研究是否可使用這些文件的最新版本。凡是不注日期的引用文件,其最新版本適用于本標準。
GB 9969.1 工業產品使用說明書 總則
GB 12978 消防電子產品檢驗規則
GB 16838 消防電子產品環境試驗方法及嚴酷等級
GB/T 17626.2-1998 電磁兼容 試驗和測量技術 靜電放電抗擾度試驗(idt IEC 61000-4-2:1995)
GB/T 17626.3-1998 電磁兼容 試驗和測量技術 射頻電磁場輻射抗擾度試驗(idt IEC61000-4-3:1995)
GB/T 17626.4-1998 電磁兼容 試驗和測量技術 電快速瞬變脈沖群抗擾度試驗(idt IEC61000-4-4:1995)
GB/T 17626.5-1999 電磁兼容 試驗和測量技術 浪涌(沖擊)抗擾度試驗(idt IEC 61000-4-5:1995)
GB/T 17626.6-1998 電磁兼容 試驗和測量技術 射頻場感應的傳導騷擾抗擾度(idt IEC61000-4-6:1996)
3 一般要求
3.1 總則
手動火災報警按鈕(以下稱報警按鈕)若要符合本標準,應首先滿足本章要求,然后按第4章規定進行試驗,并滿足試驗要求。
3.2 使用說明書
報警按鈕應有相應的中文說明書。說明書應滿足GB 9969.1的要求。
3.3 啟動零件
3.3.1 正常監視狀態
報警按鈕的正常監視狀態可通過其前面板外觀清晰識別,啟動零件不應破碎、變形或移位。
3.3.2 報警狀態
報警按鈕從正常監視狀態進入報警狀態可以通過如下操作完成,并應能從前面板外觀變化識別且與正常監視狀態有明顯區別:
a)擊碎啟動零件;
b)使啟動零件移位。
3.4 報警確認燈
報警按鈕應設紅色報警確認燈,報警按鈕啟動零件動作,報警確認燈應點亮,并保持至報警狀態被復位。如通過報警確認燈顯示報警按鈕其他工作狀態,被顯示狀態應與火災報警指示時的狀態有明顯區別。確認燈點亮時在其正前方2m處,光照度不超過500lx的環境條件下,應清晰可見。
3.5 復位
報警按鈕動作后應僅能使用工具通過下述方法進行復位:
a)對啟動零件不可重復使用的,更換新的啟動零件;
b)對啟動零件可重復使用的,復位啟動零件。
3.6 測試手段
啟動零件不可重復使用的報警按鈕應有專門測試手段,在不擊碎啟動零件情況下進行模擬報警及復位測試。
3.7 結構設計
3.7.1 安全性
操作啟動零件時不應對操作者產生傷害。
報警按鈕外殼的邊角應鈍化,減少使人受傷的可能性。
3.7.2 形狀、尺寸和顏色
3.7.2.1 形狀
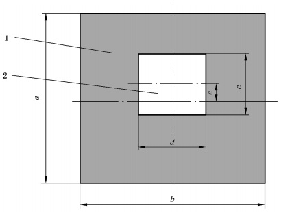
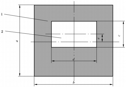
報警按鈕的前面板宜采用圖1或圖2所示形狀及表1列出的尺寸。

1-前面板;
2-操作面板;
a~e見表1。
圖1 方形啟動零件報警按鈕形狀
報警按鈕的操作面板宜為正方形(見圖1)或長方形(見圖2)及符合表1和下述要求:
a)在前面板垂直中心線的正中間;
b)可以設計成允許與前面板水平中心線有垂直偏差。
報警按鈕的操作面板應與前面板在同一水平面或嵌入前面板里,但不能凸出前面板外。

1-前面板;
2-操作面板;
a~e見表1。
圖2 長方形啟動零件報警按鈕形狀
表1 報警按鈕的外形尺寸
尺寸 | 圖1或圖2 中的符號 | 報警按鈕 | |
正方形操作面板 | 長方形操作面板 | ||
前面板高度 | a | 85mm≤a≤135mm | 85mm≤a≤135mm |
前面板寬度 | b | 85mm≤b≤135mm | 85mm≤b≤135mm |
前面板寬度與高度之比 | b/a | 0.95≤b/a≤1.05 | 0.95≤b/a≤1.05 |
操作面板高度 | c | 0.5a±5mm | 0.4a±5mm |
操作面板寬度 | d | 0.5a±5mm | 0.8a±5mm |
操作面板寬度與高度之比 | d/c | 0.95≤d/c≤1.05 | 1.9≤d/c≤2.1 |
操作面板最大偏移量 | e | ±0.1a | ±0.1a |
3.7.2.2 尺寸
報警按鈕前面板覆蓋面積(含操作面板)應大于6400mm2,操作面板面積應大于1000mm2。前面板和操作面板尺寸宜在表1規定的范圍內。
報警按鈕按制造商規定的安裝方式安裝后,前面板應與安裝面平行,且凸出安裝面至少15mm。
3.7.2.3 顏色
報警按鈕按制造商規定的安裝方式安裝后,除下述部位外,可視的表面顏色應為紅色:
a)操作面板;
b)3.7.3.2中規定的符號和文字。
操作面板的顏色除3.7.3.3中指定的符號和文字外宜為白色。
3.7.3 符號和文字
3.7.3.1 總則
報警按鈕應采用適當的符號和文字進行標識。
3.7.3.2 前面板上符號和文字
3.7.3.2.1 宜在報警按鈕前面板的上部居中標注如圖3a)所示的圖形符號或起同等作用的文字,符號和文字應為白色。
3.7.3.2.2 除3.7.3.2.1中規定,其他符號、文字均應在前面板水平中心線下方。非紅色標識部分總面積不應超過前面板面積的5%。

圖3 報警按鈕標識
3.7.3.3 操作面板上符號和文字
3.7.3.3.1 報警按鈕的操作面板上應標注圖3b)所示的圖形符號。圖形標識可附有補充性文字(如:按下報警)。符號和文字宜為黑色,其總面積不應超過操作面板總面積的10%。
3.7.3.3.2 其他符號、文字不應影響3.7.3.3.1中規定的圖形標識,且限制在操作面板上部和/或下部25%區域內。除3.7.3.3.1中規定的圖形標識,操作面板上與操作面板顏色不同的標識總面積不應超過操作面板面積的5%。
3.7.4 使用環境
制造商應規定報警按鈕的使用環境(戶內或戶外)。
3.7.5 輔助接點
報警按鈕如具有其他啟動或輔助功能,應至少有一常開或常閉接點,接點容量應在使用說明書中說明。
4 要求與試驗方法
4.1 總則
4.1.1 試驗環境條件
除在有關條文中說明外,則各項試驗均應在下述正常大氣條件下進行:
溫度:15℃~35℃;
濕度:25%RH~75%RH;
大氣壓力:86 kPa~106 kPa。
4.1.2 試驗正常監視狀態
如試驗時要求試樣處于正常監視狀態,應將試樣與制造商提供的電源和監視設備連接。
4.1.3 試樣安裝
試驗時,應按制造商規定的正常安裝方式安裝。
4.1.4 容差
如在有關條文中沒有說明時,則各項試驗數據的容差均為±5%。環境條件參數偏差應符合GB 16838要求。
4.1.5 響應時間
試樣啟動零件動作后,電源和監視設備應在10s內發出火災報警信號。
4.1.6 試樣
試樣數量應符合下述要求:
a)戶內型報警按鈕為12只;
以上為標準部分內容,如需看標準全文,請到相關授權網站購買標準正版。
-
IG541混合氣體滅火系統
IG541混合氣體滅火系統:IG-541滅火系統采用的IG-541混合氣體滅火劑是由大氣層中的氮氣(N2)、氬氣(Ar)和二氧化碳(CO2)三種氣體分別以52%、40%、8%的比例混合而成的一種滅火劑 -
二氧化碳氣體滅火系統
二氧化碳氣體滅火系統:二氧化碳氣體滅火系統由瓶架、滅火劑瓶組、泄漏檢測裝置、容器閥、金屬軟管、單向閥(滅火劑管)、集流管、安全泄漏裝置、選擇閥、信號反饋裝置、滅火劑輸送管、噴嘴、驅動氣體瓶組、電磁驅動 -
七氟丙烷滅火系統
七氟丙烷(HFC—227ea)滅火系統是一種高效能的滅火設備,其滅火劑HFC—ea是一種無色、無味、低毒性、絕緣性好、無二次污染的氣體,對大氣臭氧層的耗損潛能值(ODP)為零,是鹵代烷1211、130 -
手提式干粉滅火器
手提式干粉滅火器適滅火時,可手提或肩扛滅火器快速奔赴火場,在距燃燒處5米左右,放下滅火器。如在室外,應選擇在上風方向噴射。使用的干粉滅火器若是外掛式儲壓式的,操作者應一手緊握噴槍、另一手提起儲氣瓶上的


