MT 235-2011 立井多繩罐籠 平衡錘
- 發表時間:2022-10-12
- 來源:共立消防
- 人氣:
1 范圍
本標準規定了立井多繩罐籠平衡錘(以下簡稱平衡錘)的產品分類、技術要求、試驗方法、檢驗規則、標志、包裝、運輸和貯存。
本標準適用于立井多繩罐籠配套提升的平衡錘,與其配套的罐籠有1t、1.5t和3t礦車立井多繩罐籠。也適用于立井多繩交通罐籠配套提升的平衡錘。
2 規范性引用文件
下列文件中的條款通過本標準的引用而成為本標準的條款。凡是注日期的引用文件,其隨后所有的修改單(不包括勘誤的內容)或修訂版均不適用于本標準,然而,鼓勵根據本標準達成協議的各方研究是否可使用這些文件的最新版本。凡是不注日期的引用文件,其最新版本適用于本標準。
GB/T 27 六角頭鉸制孔用螺栓 A和B級
GB/T 116 鉚釘技術條件
GB/T 699 碳素結構鋼
GB/T 700 碳素結構鋼(GB/T 700-2006,ISO 630:1995,NEQ)
GB/T 985.1 氣焊、焊條電弧焊、氣體保護焊和高能束焊的推薦坡口(GB/T 985.1-2008,ISO 9692-1:2003,MOD)
GB/T 1184-1996 形狀和位置公差 未注公差值(eqv ISO2768-2:1989)
GB/T 1228 鋼結構用高強度大六角頭螺栓(GB/T 1228-2006,ISO 7412:1984,NEQ)
GB/T 1591 低合金高強度結構鋼
GB/T 1804-2000 一般公差 未注公差的線性和角度尺寸的公差(eqv ISO 2768-1:1989)
GB/T 3632 鋼結構用扭剪型高強度螺栓連接副
GB/T 9286 色漆和清漆 漆膜的劃格試驗(GB/T 9286-1998,eqv ISO 2409:1992)
GB 50017 鋼結構設計規范
JB/T 5000.3-2007 重型機械通用技術條件 第3部分:焊接件
JB/T 5000.10 重型機械通用技術條件 第10部分:裝配
JB/T 5000.12-2007 重型機械通用技術條件 第12部分:涂裝
MT/T 154.1 煤礦機電產品型號編制方法 第1部分:導則
MT 236 矩形鋼罐道 滾輪罐耳
MT 237.3 多繩提升容器 B型鋼絲繩懸掛裝置 圓尾繩懸掛裝置
MT 237.4 多繩提升容器 B型鋼絲繩懸掛裝置 扁尾繩懸掛裝置
MT 684 礦用提升容器重要承載件無損探傷方法與驗收規范
《煤礦安全規程》 (國家安全生產監督管理總局)
3 產品分類
3.1 型式
3.1.1 首繩懸掛裝置與平衡錘用銷軸直接連接,連接孔中心距按多繩摩擦式提升機鋼絲繩間距確定。首繩懸掛裝置超過平衡錘斷面寬度尺寸時應傾斜布置。
3.1.2 尾繩懸掛裝置采用MT 237.3、MT 237.4規定的圓尾繩和扁尾繩兩種。
3.1.3 平衡錘有繩罐道和矩形鋼罐道兩種形式。
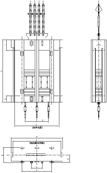
3.1.3.1 使用繩罐道的平衡錘,罐道繩布置在平衡錘的一側,采用套筒式滑動繩罐耳導向。(見圖1)。
3.1.3.2 使用矩形鋼罐道的平衡錘,矩形鋼罐道布置在平衡錘的兩端,采用MT 236規定的滾輪罐耳沿矩形鋼罐道導向(見圖2)。
3.1.4 平衡錘采用型鋼立柱。立柱與各盤體、盤體主要受力桿件之間采用GB/T 1228、GB/T 3632規定的高強螺栓或GB/T 27規定的鉸制孔用螺栓聯接。
3.1.5 平衡錘過卷時,采用上、下盤制動。制動罐耳均設置在平衡錘的兩端。
3.1.6 重錘塊為鑄鐵塊。
3.2 分類
平衡錘按運行罐道形式、質量范圍及斷面尺寸分為5個質量系列,14個品種(見表1)。
3.3 產品型號
3.3.1 平衡錘的型號編制方法應符合MT/T 154.1的規定。
3.3.2 產品型號的組成和排列方式如下:

示例:
運行罐道為繩罐道、名義質量14t、斷面尺寸(2500mm×780mm)為A型的立井多繩平衡錘,其型號為:

3.4 基本參數與主要尺寸
3.4.1 平衡錘的基本參數應符合表1的規定。
3.4.2 平衡錘的主要尺寸應符合圖1、圖2和表2的規定。

圖1 PDS系列平衡錘
以上為標準部分內容,如需看標準全文,請到相關授權網站購買標準正版。
-
IG541混合氣體滅火系統
IG541混合氣體滅火系統:IG-541滅火系統采用的IG-541混合氣體滅火劑是由大氣層中的氮氣(N2)、氬氣(Ar)和二氧化碳(CO2)三種氣體分別以52%、40%、8%的比例混合而成的一種滅火劑 -
二氧化碳氣體滅火系統
二氧化碳氣體滅火系統:二氧化碳氣體滅火系統由瓶架、滅火劑瓶組、泄漏檢測裝置、容器閥、金屬軟管、單向閥(滅火劑管)、集流管、安全泄漏裝置、選擇閥、信號反饋裝置、滅火劑輸送管、噴嘴、驅動氣體瓶組、電磁驅動 -
七氟丙烷滅火系統
七氟丙烷(HFC—227ea)滅火系統是一種高效能的滅火設備,其滅火劑HFC—ea是一種無色、無味、低毒性、絕緣性好、無二次污染的氣體,對大氣臭氧層的耗損潛能值(ODP)為零,是鹵代烷1211、130 -
手提式干粉滅火器
手提式干粉滅火器適滅火時,可手提或肩扛滅火器快速奔赴火場,在距燃燒處5米左右,放下滅火器。如在室外,應選擇在上風方向噴射。使用的干粉滅火器若是外掛式儲壓式的,操作者應一手緊握噴槍、另一手提起儲氣瓶上的


